Appartement Livingstonelaan in Utrecht

Ontgrendel 306 appartementen in Utrecht met een Gratis Account Modal openen
Foto #0 Appartement Livingstonelaan Utrecht

Aangeboden door

Met deze gegevens kun je contact opnemen met de aanbieder of de makelaar.

Probeer 14 dagen gratis

Is deze woning al verhuurd? Vertel het ons


Te huur

Livingstonelaan, Utrecht

  • 2.495 /maand
  • Appartement
  • 107 m2
  • 4 kamers

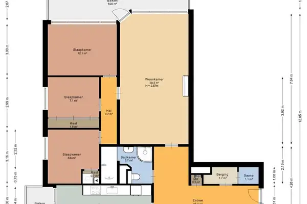
Over deze woning

TIJDELIJKE VERHUUR!
Op zoek naar een leuk en net 4-kamer hoek appartement met uitzicht op het groen?

In dit complex gelegen aan de Livingstonelaan, ligt dit prima onderhouden appartement met separate berging aan de rand van Utrecht.
Dankzij de hoekligging zit je aan het eind van het balkon en heb...

Meer informatie? Of direct contact met de verhuurder? Modal openen

Verhuurinformatie

Beschikbaar per:
11-04-2026
Woning actief sinds:
11-04-2026
Verhuurder actief sinds:
26-03-2020

Ondanks strenge controles kan Huurstunt de beschikbaarheid van de woning bij de verhuurder of aanbieder nooit 100% garanderen. Ook is het mogelijk dat deze extra kosten in rekening brengt.

Kosten

Laatst bekende huurprijs:
€ 2.495

Bouw

Type woonruimte:
Appartement
Opleveringsniveau:
Kaal
Bouwjaar:
1969

Locatie

Straat:
Livingstonelaan
Postcode:
3526 JP
Ligging:
Wijk 08 Zuidwest
Wijk:
Kanaleneiland-Zuid
Plaats:
Utrecht
Gemeente:
Utrecht
Provincie:
Utrecht

Binnenruimte

Aantal kamers:
4
Aantal slaapkamers:
3
Aantal badkamers:
1

Buitenruimte

Balkon:
Garage:
Tuin:
Opslag:
Parkeerplaats:
Onbekend

Oppervlakte

Woning oppervlakte:
107 m2
Totale oppervlakte:
Onbekend

Extra kenmerken

Minimale huurperiode:
6 maanden
Warm water:
elektrische boiler huur
Verwarming:
stadsverwarming
Isolatie:
gedeeltelijk dubbel glas
Energielabel:
Label D

Aangeboden door

Met deze gegevens kun je contact opnemen met de aanbieder of de makelaar.

Probeer 14 dagen gratis

Is deze woning al verhuurd? Vertel het ons


We hebben meer voor je gevonden

Vergelijkbare woningen

Bekijk alle gevonden woningen
Te huur

Livingstonelaan

  • 107 m2
  • 4 kamers
  • Utrecht
Te huur

Hemdsmouwsteeg

  • 40 m2
  • 2 kamers
  • Utrecht
Te huur

Waterstraat

  • 25 m2
  • 1 kamer
  • Utrecht
Te huur

Neptunusstraat

  • 30 m2
  • 1 kamer
  • Utrecht