Appartement Monteverdistraat in Haarlem

Ontgrendel 119 appartementen in Haarlem met een Gratis Account Modal openen
Foto #0 Appartement Monteverdistraat Haarlem

Aangeboden door

Met deze gegevens kun je contact opnemen met de aanbieder of de makelaar.

Probeer 14 dagen gratis

Is deze woning al verhuurd? Vertel het ons


Te huur Nieuw

Monteverdistraat, Haarlem

  • 1.735 /maand
  • Appartement
  • 75 m2
  • 2 kamers

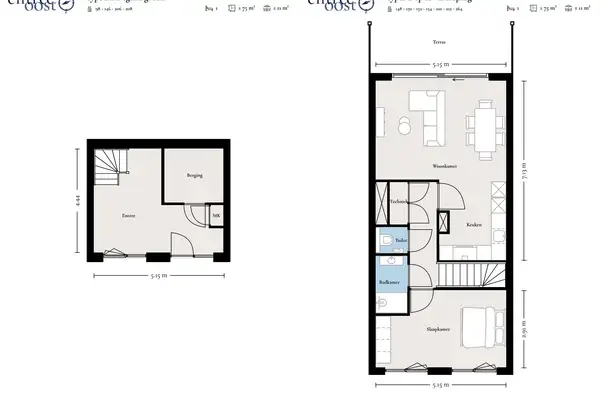
Over deze woning

NL:
**Modern wonen | Goede verbinding | Haarlem**

Wonen in Haarlem? Dat doet u hier! Dit appartement ligt aan de rand van Schalkwijk, komt uit bouwjaar 2022 en heeft een goede verbinding met Amsterdam en Schiphol. Dit 3-KAMERAPPARTEMENT (Ca. 78m2) is heerlijk licht, hier geniet van de ochtendzon,...

Meer informatie? Of direct contact met de verhuurder? Modal openen

Verhuurinformatie

Beschikbaar per:
01-04-2026
Woning actief sinds:
19-03-2026
Verhuurder actief sinds:
04-08-2023

Ondanks strenge controles kan Huurstunt de beschikbaarheid van de woning bij de verhuurder of aanbieder nooit 100% garanderen. Ook is het mogelijk dat deze extra kosten in rekening brengt.

Kosten

Laatst bekende huurprijs:
€ 1.735

Bouw

Type woonruimte:
Appartement
Opleveringsniveau:
Gestoffeerd
Bouwjaar:
2022

Locatie

Straat:
Monteverdistraat
Postcode:
2035 PH
Ligging:
Boerhaavewijk
Wijk:
Boerhaavevaart
Plaats:
Haarlem
Gemeente:
Haarlem
Provincie:
Noord-Holland

Binnenruimte

Aantal kamers:
2
Aantal slaapkamers:
1
Aantal badkamers:
1

Buitenruimte

Balkon:
Garage:
Tuin:
Opslag:
Onbekend
Parkeerplaats:

Oppervlakte

Woning oppervlakte:
75 m2
Totale oppervlakte:
Onbekend

Extra kenmerken

Minimale huurperiode:
1 jaar
Minimum maandinkomen:
€6.200
Onderhoud buiten:
goed
Huurprijs:
exclusief
Buurt:
Boerhaavevaart

Aangeboden door

Met deze gegevens kun je contact opnemen met de aanbieder of de makelaar.

Probeer 14 dagen gratis

Is deze woning al verhuurd? Vertel het ons


We hebben meer voor je gevonden

Vergelijkbare woningen

Bekijk alle gevonden woningen