Appartement Eikenbos in Bladel

Ontgrendel 1 appartementen in Bladel met een Gratis Account Modal openen
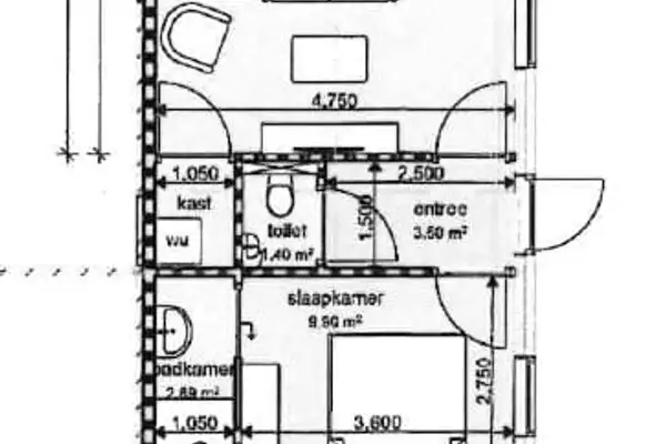
Foto #0 Appartement Eikenbos Bladel

Aangeboden door

Met deze gegevens kun je contact opnemen met de aanbieder of de makelaar.

Probeer 14 dagen gratis

Is deze woning al verhuurd? Vertel het ons


Te huur

Eikenbos, Bladel

  • 1.275 /maand
  • Appartement
  • 47 m2
  • 2 kamers

Over deze woning

Op een aantrekkelijke locatie in Bladel bieden wij dit gloednieuwe en modern afgewerkte 2-kamer appartement te huur aan. Het appartement is nog nooit bewoond en volledig instapklaar, waardoor u hier direct comfortabel kunt wonen.

De woning beschikt over een ruime en lichte woonkamer met grote raampartijen...

Meer informatie? Of direct contact met de verhuurder? Modal openen

Verhuurinformatie

Beschikbaar per:
06-03-2026
Woning actief sinds:
06-03-2026
Verhuurder actief sinds:
31-07-2020

Ondanks strenge controles kan Huurstunt de beschikbaarheid van de woning bij de verhuurder of aanbieder nooit 100% garanderen. Ook is het mogelijk dat deze extra kosten in rekening brengt.

Kosten

Laatst bekende huurprijs:
€ 1.275

Bouw

Type woonruimte:
Appartement
Opleveringsniveau:
Onbekend
Bouwjaar:
2026

Locatie

Straat:
Eikenbos
Postcode:
5531 MZ
Ligging:
Wijk 00 Bladel
Wijk:
Bladel Bedrijventerrein De Beemd en Leemskuilen
Plaats:
Bladel
Gemeente:
Bladel
Provincie:
Noord-Brabant

Binnenruimte

Aantal kamers:
2
Aantal slaapkamers:
1
Aantal badkamers:
Onbekend

Buitenruimte

Balkon:
Onbekend
Garage:
Tuin:
Onbekend
Opslag:
Parkeerplaats:

Oppervlakte

Woning oppervlakte:
47 m2
Totale oppervlakte:
Onbekend

Extra kenmerken

Vergadering:
Nee
Ingeschreven bij de KvK:
Nee
Soort garage:
Parkeerplaats
Energielabel:
Niet beschikbaar
Gelegen op woonlaag:
1e woonlaag

Aangeboden door

Met deze gegevens kun je contact opnemen met de aanbieder of de makelaar.

Probeer 14 dagen gratis

Is deze woning al verhuurd? Vertel het ons


We hebben meer voor je gevonden

Vergelijkbare woningen

Bekijk alle gevonden woningen